【NEW】ルネ稲毛海岸グランマークス フルリノベ/3LDK/JR京葉線「稲毛海岸駅」【更新】 | 千葉の中古マンション・不動産情報ならリメゾンへ
-
【NEW】ルネ稲毛海岸グランマークス フルリノベ/3LDK/JR京葉線「稲毛海岸駅」
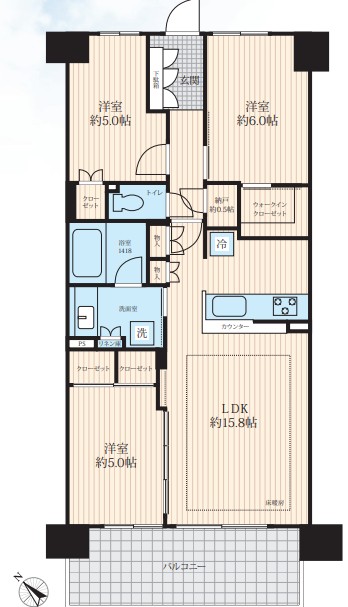
【フルリノベーション】ルネ稲毛海岸グランマークス 71.74㎡
~生活利便と子育て環境が整う大規模レジデンス~

【ルネ稲毛海岸グランマークス 5階 4,480万円】
南西向き/ 3LDK/71.74㎡ /ペット飼育可/京葉線「稲毛海岸駅」駅徒歩14分フルリノベーション
◇キッチン◇浴室◇洗面所◇トイレ◇リビング◇洋室◇給湯器◇建具・フローリング
ルネ稲毛海岸グランマークスは、JR京葉線『稲毛海岸』駅徒歩圏に位置する大規模マンションです。周辺にはスーパーやドラッグストア、小学校、公園などが徒歩圏にまとまり、日々の生活がスムーズ。特に稲毛第二小学校まで徒歩約2分という立地は、子育て世帯にとって大きな安心材料です。駅徒歩圏に加えバス便も利用でき、生活利便性と住環境のバランスが取れた住まいといえるでしょう。
南西向きで明るいリビング
リビングは南西向きで日当たり良好。バルコニーに面した開放的な空間で、ゆったりと家族団らんの時間を過ごせます。キッチンからはリビング全体が見渡せ、子育て中のご家庭にも安心です。
ルネ稲毛海岸グランマークス周辺環境
買い物施設・教育施設・公園が徒歩圏にそろう、暮らしやすさの高いマンションです。
稲毛第二小学校まで徒歩約2分、稲浜中学校が通学圏内という教育環境は、子育て世帯にとって大きな安心材料。
日々の通学負担が少なく、学校との距離感を重視するご家庭にもおすすめできます。
-
ピアシティ稲毛海岸(スーパー・専門店) … 徒歩約4分
サンドラッグ 稲毛海岸店 … 徒歩約4分
ヤオコー 稲毛海岸店 … 徒歩約7~8分
イオン マリンピア店 … 徒歩約16~17分
千葉市立 稲毛第二小学校 徒歩約2分
千葉市立 稲浜中学校 徒歩約10分
物件詳細はコチラから:ルネ稲毛海岸グランマークス
探している条件が合致しているお客様がいらっしゃいましたらぜひお問い合わせくださいませ!
ページ作成日 2026-01-15
-
取引マンション一覧
- アクアウイング353
- アデニウム千葉みなと
- イトーピア原木中山
- ウィズ稲毛
- ウエリス検見川浜レジデンス
- ウェリス稲毛
- ヴィルフォーレ稲毛
- エクシオ千葉中央
- エステシティ海浜幕張
- エムブランド船橋
- グランコート船橋法典
- グランシティヒルミレナ
- グランドメゾン西船橋
- グランパスシティ ステイトコート
- グランパスシティ ブライトコート
- クリオ船堀親水公園
- クレストフォルム市川南ウッドスクエア
- クレストフォルム市川南グランステージ
- クレストフォルム西船橋サウスステージ
- コープ西船橋
- コートピア高洲
- コスモ・ザ・パークス船橋
- コスモ市川
- コスモ東中山
- コロンブスシティ
- ザ・レジデンス検見川浜
- ザ・クイーンズガーデン稲毛
- サーパス船橋山手
- サニータウンにれの木台住宅
- サンヴェール西船橋
- サンクレイドル習志野パセオ
- サンクレイドル千葉中央
- セレナハイム千葉椿森
- ゼファー西船橋
- ソフトタウンニュー谷津遊園
- ダイアパレス稲毛緑園都市
- ダイアパレス京葉蘇我Ⅱ
- ダイアパレス京葉蘇我Ⅴ
- ティアラマークス船橋行田公園
- パークサイド船橋
- パークシティ検見川浜
- パークホームズ稲毛小仲台
- パークホームズ稲毛海岸花椿
- パークホームズ西船橋サウス
- パークホームズ西船橋本郷町
- ハーバーレジデンス
- ハイホーム西船橋
- パルコート市川
- パルテール船橋山手
- ファミール第一西船橋
- フェアテラス下総中山
- プラウドタワー稲毛
- プレアガーデン
- プローラ津田沼
- ベイマークスクエア オーシャンコート
- ベイマークスクエア シティコートタワー
- ベイマークスクエア セントラルコート
- ベイマークスクエア プラザコート
- ベイマークスクエア マリナコートタワー
- ベイマークスクエア ガーデンコート
- ベルス西船橋カザリア
- モアステージ市川
- モアクレスト荒川公園
- ライオンズガーデン千葉八街
- ライオンズクオーレ幕張マークスフォート
- ライオンズマンション上北沢
- ライオンズマンション稲毛
- ライオンズマンション西船橋シティ
- ライオンズマンション西船橋第3
- リーベスト勝田台
- リーベスト西千葉
- リーベスト西船橋
- リステージ西船橋
- ルネアクシアム
- ルネサンス・ヴィラズ・フォート
- ルネ西船橋
- ルミナス原木中山
- レーベンハイム西船橋クールスクエア
- レクセルプラザ西船橋
- レクセルマンション西船橋
- レクセル西船橋ウインドコート
- レジデンス検見川浜
- レックス稲毛海岸
- レックス市川松飛台
- 稲毛パイロットホーム
- 稲毛ファミールハイツ
- 稲毛ロイヤルハイツ
- 稲毛海岸三丁目団地
- 稲毛高浜南団地
- 稲毛高浜北団地
- 稲毛台サンハイツ
- 稲毛団地
- 夏見台オークホームズ
- 鎌ヶ谷グリーンハイツ
- 宮野木ガーデンハイツ
- 検見川アートホームズ
- 検見川パークハウス
- 幸町西住宅
- 幸町東住宅
- 行徳ハイライズマンション
- 香澄一丁目住宅
- 高洲一丁目住宅
- 高洲二丁目住宅
- 高品ハイツ
- 三協原木中山ハイツ
- 市川大野パークホームズ
- 成田中央公園スカイハイツ
- 西小中台団地
- 西船橋グリーンハイツ
- 西船橋リリエンハイム
- 西船橋ロイヤルハイツ
- 西船橋永谷マンション
- 西船橋住宅
- 西船橋パークホームズ
- 西船橋二丁目パークホームズ
- 千葉ガーデンタウンA棟
- 千葉ガーデンタウンB棟
- 千葉ガーデンタウンC棟
- 千葉ガーデンタウンD棟
- 千葉ガーデンタウンE棟
- 千葉ガーデンタウンF棟
- 津田沼ハイライズ
- 津田沼十番街ビル
- 東急ドエルアルス西船橋
- 幕張ガーデンオアシス
- 幕張ガーデンフォート
- 幕張ハウス
- 真砂一丁目団地
- ブランファーレ
TEL:043-239-7108 FAX:043-239-7109












