メビウスブレイン西千葉 千葉県千葉市中央区登戸4-12-3|3,399万円の中古マンション|分譲住宅や新築物件|株式会社Re・maison
| 価格 | 3,399万円 ![]() |
||||
|---|---|---|---|---|---|
| 所在地 | 千葉県千葉市中央区登戸4-12-3
登戸周辺の中古マンションを探す |
専有面積 | 7741u | 築年月 | 2008年3月築 |
| 交通 |
京成千葉線 西登戸 徒歩3分
|
管理費等 | 18,200円 | 修繕積立金 | 19,100円 | 所在階/階数 | 2階/地上7階建 | バルコニー面積 | 7.77m² |
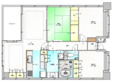
| 間取り | 3LDK (-) | ||||
| 特徴 |
|
|---|---|
| セールスコメント | - |
| 採光面 | 南 | 取引態様 | 仲介 |
|---|---|---|---|
| 現況 | 空家 | 引渡し | 即時 |
| 総戸数 | 42戸 | 構造 | RC造 |
| テラス面積 | - | 専用庭面積 | - |
| 駐車場 | 有 | 駐輪場 | 有 |
| 建物権利 | 所有権 | 土地権利 | 所有権 |
| 用途地域 | 第一種中高層住居専用地域 - - | 管理態様 | 管理形態:委託(通勤) 管理組合:あり 管理会社:東急コミュニティー |
| 備考 | |||
| 情報更新日 | 2026年04月30日 | 次回更新日 | 2026年05月14日 |
| 小学校区 | 千葉市立緑町小学校 (千葉県千葉市) この学区の他の物件を見る |
中学校区 | 緑町中学校 (千葉県千葉市) この学区の他の物件を見る |
|---|
| 価格 | 万円 | ||
|---|---|---|---|
| 年利率 | % |
||
| ボーナス払い | 返済年数 | ||
| 頭金 | 直接入力する | 万円 | |

毎月のご返済額 |
ボーナス(×年2回) |
物件価格3,399万円 |
![]() |
![]() |
千葉市中央区登戸4-12-3
3399万円~3499万円 |
-