千葉市中央区矢作町 新築戸建 2号棟 千葉県千葉市中央区矢作町884-1|3,690万円の新築一戸建て|株式会社Re・maison
| 価格 | 3,690万円値下がり ![]() |
||||
|---|---|---|---|---|---|
| 所在地 | 千葉県千葉市中央区矢作町884-1
矢作町周辺の一戸建てを探す |
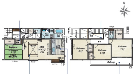
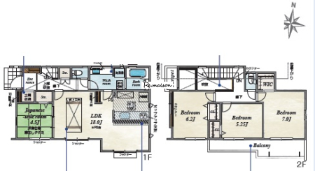
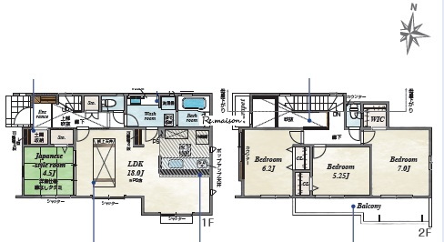
土地面積 | 127.6m² (公簿) (38.59坪) | 建物面積 | 100.96u |
| 築年月 | 2026年3月築 | 間取り | 4LDK (-) | ||
| 交通 |
JR総武線 千葉 バス20分 矢作台 停歩1分
|
||||
| 特徴 |
|
|---|---|
| セールスコメント | - |
| 採光面 | 南 | 構造/階数 | 木造/地上2階建 |
|---|---|---|---|
| 建ぺい率 | 60(%) | 容積率 | 150(%) |
| 駐車場 | 有 | 現況/引渡し | 新築/即時 |
| 土地権利 | 所有権 | 私道負担面積 | - |
| 接道状況 | 接道: 西 3.3m 公道 | 用途地域 |
第一種低層住居専用地域
|
| セットバック | - | 法令上の制限 | - |
| 地目 | 宅地 | 地勢 | |
| 建築確認番号 | 都市計画 | 市街化区域 | |
| 取引態様 | 仲介 | ||
| 備考 | |||
| 情報更新日 | 2026年05月11日 | 次回更新日 | 2026年05月25日 |
| 小学校区 | 千葉市立星久喜小学校 (千葉県千葉市) この学区の他の物件を見る |
中学校区 | 星久喜中学校 (千葉県千葉市) この学区の他の物件を見る |
|---|
| 価格 | 万円 | ||
|---|---|---|---|
| 年利率 | % |
||
| ボーナス払い | 返済年数 | ||
| 頭金 | 直接入力する | 万円 | |

毎月のご返済額 |
ボーナス(×年2回) |
物件価格3,690万円 |
![]() |
![]() |
千葉市中央区矢作町884-1
3690万円 |
【頭金0円で購入可|本日ご見学OK】
今の家賃、ただの出費になっていませんか?
\こんなお悩み、ありませんか?/
● 自己資金ゼロでも家って買える?
● 転職して間もないけど大丈夫?
● 他にもローン(車・カード)がある
● 母子家庭・自営業・単身者でも通る?
● 他社で住宅ローン審査に落ちてしまった…
→ 私たちは、そんな「もう無理かも…」と思った方にこそ、道を示してきました。
住宅ローンの通過実績、相談件数多数。経験と知識で、“可能性”を引き出すご提案をします。
● 住宅は、一生に一度の買い物じゃない時代へ
「家を買う=一生住む」ではなく、
今は“ライフスタイルに合わせて住み替える”時代です。
私たちRe・maisonは、
“売って終わり”ではなく、
“人生の変化に寄り添い続ける”パートナーを目指しています。
【 今すぐできること】
●月々の支払いが「家賃とどれくらい変わる」か無料シミュレーション
●物件見学のご予約(即日対応OK)
●住宅ローンの事前診断・個別相談(無料・秘密厳守)
ご相談は何度でも無料。まずは話を聞いてみるだけでもOKです!