千葉市中央区葛城2丁目 新築戸建 2号棟 千葉県千葉市中央区葛城2-9-3|★成約御礼★の新築一戸建て|株式会社Re・maison
| 価格 | ★成約御礼★ ![]() |
||||
|---|---|---|---|---|---|
| 所在地 | 千葉県千葉市中央区葛城2-9-3
葛城周辺の一戸建てを探す |
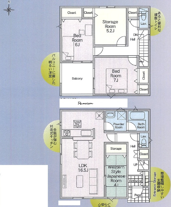
土地面積 | 110.36m² (公簿) (33.38坪) | 建物面積 | 94.77u |
| 築年月 | 2026年3月築 | 間取り | 3SLDK (-) | ||
| 交通 |
京成千葉線 千葉寺 徒歩15分
JR外房線 本千葉 徒歩17分 |
||||
| 特徴 |
|
|---|---|
| セールスコメント | - |
| 採光面 | 南 | 構造/階数 | 木造/地上2階建 |
|---|---|---|---|
| 建ぺい率 | 60(%) | 容積率 | 160(%) |
| 駐車場 | 有 | 現況/引渡し | 完成/即時 |
| 土地権利 | 所有権 | 私道負担面積 | - |
| 接道状況 | 接道: 南 4m 公道 接道: 西 3.8m 公道 |
用途地域 |
第一種中高層住居専用地域
|
| セットバック | - | 法令上の制限 | - |
| 地目 | 宅地 | 地勢 | |
| 建築確認番号 | 都市計画 | 市街化区域 | |
| 取引態様 | 仲介 | ||
| 備考 | |||
| 情報更新日 | 2026年05月11日 | 次回更新日 | 2026年05月25日 |
| 小学校区 | 千葉市立鶴沢小学校 (千葉県千葉市) この学区の他の物件を見る |
中学校区 | 葛城中学校 (千葉県千葉市) この学区の他の物件を見る |
|---|
| 価格 | 万円 | ||
|---|---|---|---|
| 年利率 | % |
||
| ボーナス払い | 返済年数 | ||
| 頭金 | 直接入力する | 万円 | |

毎月のご返済額 |
ボーナス(×年2回) |
物件価格★成約御礼★ |
【仲介手数料無料です!頭金0円で購入可!本日ご見学可能です!】
今の家賃と比べてみてください!
こんなお悩みを抱えていませんか?
・家賃を支払うのがもったいない
・自己資金がなくても借りられるの?
・転職してまだ間もない
・マイカーローンなど、他に借入がある
・過去の滞納が心配
・母子家庭の方
・自営業の方
・単身者の方
・他社の事前審査に落ちてしまった
お客様のお悩みに親身に応えて参りました。
不動産も一生に一度の物ではなくなっています。
家はライフスタイルやライフステージにあわせて住みかえるものという
新たな価値観をもとに「一度きりのお付き合い」から「生涯お付き合い」のできる不動産会社へと。
弊社では、お客様に不動産のプロとして、私たちにしかできない価値のある提案してまいります。