千葉市花見川区こてはし台 新築戸建 2号棟 千葉県千葉市花見川区こてはし台5-6-2|2,490万円の新築一戸建て|株式会社Re・maison
| 価格 | 2,490万円 ![]() |
||||
|---|---|---|---|---|---|
| 所在地 | 千葉県千葉市花見川区こてはし台5-6-2
こてはし台周辺の一戸建てを探す |
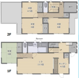
土地面積 | 122.62m² (公簿) (37.09坪) | 建物面積 | 86.94u |
| 築年月 | 2025年6月築 | 間取り | 3LDK (-) | ||
| 交通 |
京成本線 勝田台 バス17分 こてはし第三 停歩3分
|
||||
| 特徴 |
|
|---|---|
| セールスコメント | - |
| 採光面 | 南東 | 構造/階数 | 木造/地上2階建 |
|---|---|---|---|
| 建ぺい率 | 50(%) | 容積率 | 100(%) |
| 駐車場 | 有 | 現況/引渡し | 新築/即時 |
| 土地権利 | 所有権 | 私道負担面積 | - |
| 接道状況 | 接道: 南西 6m 公道 | 用途地域 |
第一種低層住居専用地域
|
| セットバック | - | 法令上の制限 | - |
| 地目 | 宅地 | 地勢 | |
| 建築確認番号 | 都市計画 | 市街化区域 | |
| 取引態様 | 仲介 | ||
| 備考 | |||
| 情報更新日 | 2025年11月23日 | 次回更新日 | 2025年12月07日 |
| 小学校区 | 千葉市立こてはし台小学校 (千葉県千葉市) この学区の他の物件を見る |
中学校区 | こてはし台中学校 (千葉県千葉市) この学区の他の物件を見る |
|---|
| 価格 | 万円 | ||
|---|---|---|---|
| 年利率 | % |
||
| ボーナス払い | 返済年数 | ||
| 頭金 | 直接入力する | 万円 | |

毎月のご返済額 |
ボーナス(×年2回) |
物件価格2,490万円 |
【仲介手数料無料です!頭金0円で購入可!本日ご見学可能です!】
今の家賃と比べてみてください!
こんなお悩みを抱えていませんか?
・家賃を支払うのがもったいない
・自己資金がなくても借りられるの?
・転職してまだ間もない
・マイカーローンなど、他に借入がある
・過去の滞納が心配
・母子家庭の方
・自営業の方
・単身者の方
・他社の事前審査に落ちてしまった
お客様のお悩みに親身に応えて参りました。
不動産も一生に一度の物ではなくなっています。
家はライフスタイルやライフステージにあわせて住みかえるものという
新たな価値観をもとに「一度きりのお付き合い」から「生涯お付き合い」のできる不動産会社へと。
弊社では、お客様に不動産のプロとして、私たちにしかできない価値のある提案してまいります。