ダイアパレス蘇我VI 千葉県千葉市中央区宮崎町663-8|3,090万円の中古マンション|分譲住宅や新築物件|株式会社Re・maison
| 価格 | 3,090万円 ![]() |
||||
|---|---|---|---|---|---|
| 所在地 | 千葉県千葉市中央区宮崎町663-8
宮崎町周辺の中古マンションを探す |
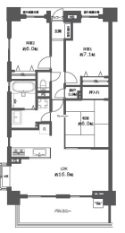
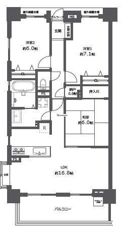
専有面積 | 78.79u | 築年月 | 2008年2月築 |
| 交通 |
JR京葉線 蘇我 徒歩19分
京成千葉線 千葉寺 徒歩13分 |
管理費等 | 9,900円 | 修繕積立金 | 15,760円 | 所在階/階数 | 4階/地上8階建 | バルコニー面積 | 10.91m² |
| 間取り | 3LDK (-) | ||||
| 特徴 |
|
|---|---|
| セールスコメント | - |
| 採光面 | 東 | 取引態様 | 仲介 |
|---|---|---|---|
| 現況 | 空家 | 引渡し | 即時 |
| 総戸数 | 51戸 | 構造 | RC造 |
| テラス面積 | - | 専用庭面積 | - |
| 駐車場 | 有 | 駐輪場 | 有 |
| 建物権利 | 所有権 | 土地権利 | 所有権 |
| 用途地域 | - - - | 管理態様 | 管理形態:委託(通勤) 管理組合:あり 管理会社:(株)東急コミュニティ |
| 備考 | |||
| 情報更新日 | 2025年12月13日 | 次回更新日 | 2025年12月27日 |
| 小学校区 | 千葉市立宮崎小学校 (千葉県千葉市) この学区の他の物件を見る |
中学校区 | 蘇我中学校 (千葉県千葉市) この学区の他の物件を見る |
|---|
| 価格 | 万円 | ||
|---|---|---|---|
| 年利率 | % |
||
| ボーナス払い | 返済年数 | ||
| 頭金 | 直接入力する | 万円 | |

毎月のご返済額 |
ボーナス(×年2回) |
物件価格3,090万円 |
【頭金0円で購入可!本日ご見学可能です!】
今の家賃と比べてみてください!
こんなお悩みを抱えていませんか?
・家賃を支払うのがもったいない
・自己資金がなくても借りられるの?
・転職してまだ間もない
・マイカーローンなど、他に借入がある
・過去の滞納が心配
・母子家庭の方
・自営業の方
・単身者の方
・他社の事前審査に落ちてしまった
お客様のお悩みに親身に応えて参りました。
不動産も一生に一度の物ではなくなっています。
家はライフスタイルやライフステージにあわせて住みかえるものという
新たな価値観をもとに「一度きりのお付き合い」から「生涯お付き合い」のできる不動産会社へと。
弊社では、お客様に不動産のプロとして、私たちにしかできない価値のある提案してまいります。