ウィライブ稲毛海岸 千葉県千葉市美浜区稲毛海岸5-1-7|★成約御礼★の中古マンション|分譲住宅や新築物件|株式会社Re・maison
| 価格 | ★成約御礼★ ![]() |
||||
|---|---|---|---|---|---|
| 所在地 | 千葉県千葉市美浜区稲毛海岸5-1-7
稲毛海岸周辺の中古マンションを探す |
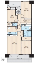
専有面積 | 77.04u | 築年月 | 2003年2月築 |
| 交通 |
JR京葉線 稲毛海岸 徒歩16分
京成千葉線 京成稲毛 徒歩12分 |
管理費等 | 9,170円 | 修繕積立金 | 9,170円 | 所在階/階数 | 3階/地上15階建 | バルコニー面積 | 12.7m² |
| 間取り | 3LDK (-) | ||||
| 特徴 |
|
|---|---|
| セールスコメント | - |
| 採光面 | 南西 | 取引態様 | 仲介 |
|---|---|---|---|
| 現況 | 空家 | 引渡し | 相談 |
| 総戸数 | 98戸 | 構造 | SRC造 |
| テラス面積 | - | 専用庭面積 | - |
| 駐車場 | 有 | 駐輪場 | 有:200円/月 |
| 建物権利 | 所有権 | 土地権利 | 所有権 |
| 用途地域 | - - - | 管理態様 | 管理形態:委託(通勤) 管理組合:あり 管理会社:ケイエスコミュニティ(株) |
| 備考 | |||
| 情報更新日 | 2025年12月13日 | 次回更新日 | 2025年12月27日 |
| 小学校区 | 千葉市立稲毛第二小学校 (千葉県千葉市) この学区の他の物件を見る |
中学校区 | 稲浜中学校 (千葉県千葉市) この学区の他の物件を見る |
|---|
| 価格 | 万円 | ||
|---|---|---|---|
| 年利率 | % |
||
| ボーナス払い | 返済年数 | ||
| 頭金 | 直接入力する | 万円 | |

毎月のご返済額 |
ボーナス(×年2回) |
物件価格★成約御礼★ |
【頭金0円で購入可|本日ご見学OK】
今の家賃、ただの出費になっていませんか?
\こんなお悩み、ありませんか?/
● 自己資金ゼロでも家って買える?
● 転職して間もないけど大丈夫?
● 他にもローン(車・カード)がある
● 母子家庭・自営業・単身者でも通る?
● 他社で住宅ローン審査に落ちてしまった…
→ 私たちは、そんな「もう無理かも…」と思った方にこそ、道を示してきました。
住宅ローンの通過実績、相談件数多数。経験と知識で、“可能性”を引き出すご提案をします。
● 住宅は、一生に一度の買い物じゃない時代へ
「家を買う=一生住む」ではなく、
今は“ライフスタイルに合わせて住み替える”時代です。
私たちRe・maisonは、
“売って終わり”ではなく、
“人生の変化に寄り添い続ける”パートナーを目指しています。
【 今すぐできること】
●月々の支払いが「家賃とどれくらい変わる」か無料シミュレーション
●物件見学のご予約(即日対応OK)
●住宅ローンの事前診断・個別相談(無料・秘密厳守)
ご相談は何度でも無料。まずは話を聞いてみるだけでもOKです!